旧カタログ掲載商品を表示しています。最新版はこちら






| カラー | B7:カームブラック YW:ホワイト H2:プラチナステン B1:ブラウン |
|---|---|
| 材質 | アルミ押出形材 |
| 強度 | 耐積雪性能:積雪100cm相当 耐積雪性能:積雪20cm相当 耐積雪性能:積雪50cm相当 |
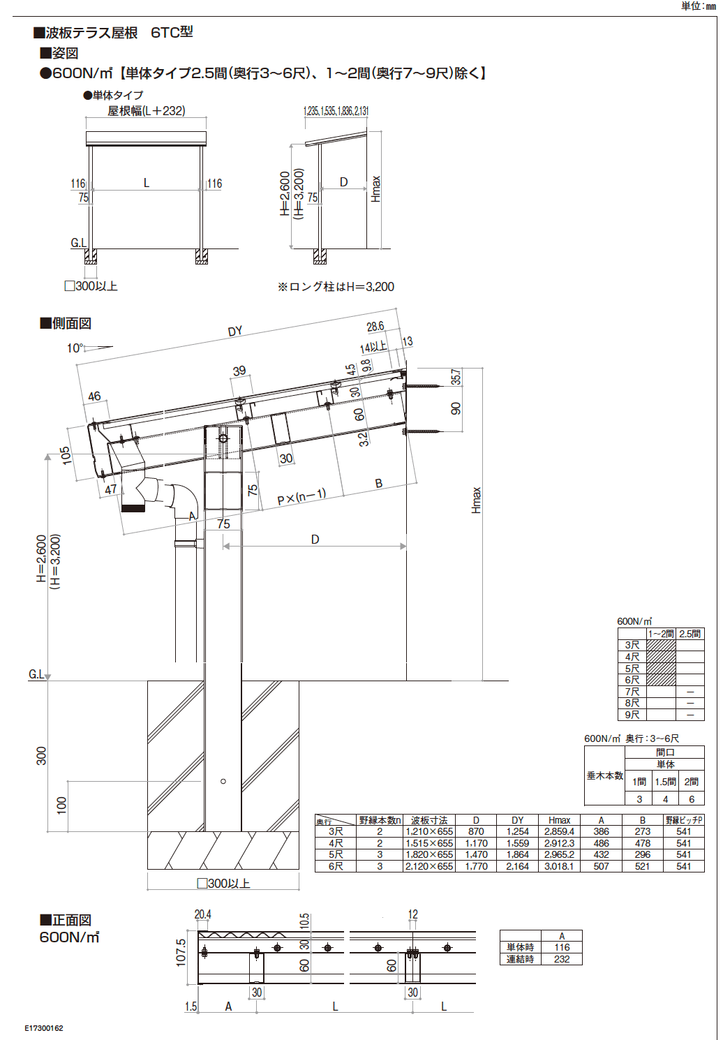
| シリーズ | 6TC型 |
| 標準納期 | 受注生産 |
| カタログ | ウォールエクステリア② 2023.3 |
|---|---|
| WEBカタログ | ウォールエクステリア② 2023.3 |
| カタログページ | ウォールエクステリア② 2023.3 P82~P85,P505,価格表P498~P503,寸法図P506~P513 |
| 新旧品 | 波板テラス屋根 6TC型(テラス屋根・バルコニー屋根 2025.04)波板テラス屋根 6TC型【2024年版】(テラス屋根・バルコニー屋根 2024.04) |










